Ravintola Kasinon
JUHLAT
Kasinolla järjestät helposti syntymäpäivät, häät, valmistujaiset, muistotilaisuudet ja pikkujoulut.
Tilavuokraus räätälöidään tapahtuman luonteen ja henkilömäärän mukaan.
Arvokas tunnelma keskellä kauneinta Lappeenrantaa
Juhlatila Kasino
Etsitkö monipuolista juhlatilaa juhliin? Kasino tarjoaa näyttävät ja muuntautuvat tilat erikokoisiin tapahtumiin. Käytössäsi on koko juhlatila, sekä yläkerta että alakerta, joten tilaa riittää niin pienille seurueille kuin suuremmillekin juhlille.
Keskeinen sijainti kaupungin kauneimmalla paikalla, viihtyisä miljöö ja joustavat tilaratkaisut tekevät Kasinosta erinomaisen valinnan yksityistilaisuuksiin ja yritysjuhliin.
Ota yhteyttä ja varaa juhlatila Kasinolta, suunnitellaan yhdessä ikimuistoiset ja iloiset juhlat tai lämminhenkinen tilaisuus, Teidän tarpeidenne mukaan.
Kasinon upeissa maisemissa viihtyy kaikkina vuodenaikoina
Yhdessä luomme onnistuneet juhlat
Meiltä löydät valmiit, huolella suunnitellut menuehdotukset juhliisi. Räätälöimme tarjoilukokonaisuuden juomineen aina toiveidesi ja tilaisuutesi luonteen mukaisesti.
Huomioimme allergeenit ja erityisruokavaliot tarkasti ja ammattitaidolla, jotta jokainen vieras voi nauttia illasta huolettomasti.
Kasinon yläkerran tiloissa on ruokailumahdollisuus noin 120 hengelle. Pöytäjärjestelyt ja pöytäkoot mukautetaan tilaisuutesi tarpeisiin, olipa kyseessä intiimi illallinen tai suurempi juhla.
Ruokailu voidaan toteuttaa toiveidesi mukaan kokonaan buffet-pöydästä, yhdistelmänä (esimerkiksi alku- ja jälkiruoat buffetista sekä pääruoka à la carte) tai täysin à la carte -tarjoiluna. Suunnittelemme kokonaisuuden niin, että se palvelee tilaisuuttasi parhaalla mahdollisella tavalla.
Muunneltavat tilat
Kasinon Juhlatilat muokkaantuvat juhliesi ja tarpeidesi mukaan
Juhlatilamme ovat helposti muunneltavissa tilaisuuden luonteen mukaan. Pöytiä voidaan siirrellä ja järjestellä joustavasti, jotta tila sopii niin ruokailuun, seurusteluun kuin juhlintaan.
Tarvittaessa myös tanssilattia voidaan kattaa pöydillä ruokailun ajaksi. Illan edetessä pöydät voidaan siirtää pois tai järjestää uudelleen, jolloin tilaan saadaan lisää tilaa tanssille ja juhlatunnelmalle.
Näin juhlatilamme mukautuvat helposti juuri teidän tilaisuutenne tarpeisiin.
Klikkaa kuvia nähdäksesi ne suurempina.


Kasinon Juhlatilat muokkaantuvat juhliesi ja tarpeidesi mukaan
Juhlatilamme ovat helposti muunneltavissa tilaisuuden luonteen mukaan. Pöytiä voidaan siirrellä ja järjestellä joustavasti, jotta tila sopii niin ruokailuun, seurusteluun kuin juhlintaan.
Tarvittaessa myös tanssilattia voidaan kattaa pöydillä ruokailun ajaksi. Illan edetessä pöydät voidaan siirtää pois tai järjestää uudelleen, jolloin tilaan saadaan lisää tilaa tanssille ja juhlatunnelmalle.
Näin juhlatilamme mukautuvat helposti juuri teidän tilaisuutenne tarpeisiin.

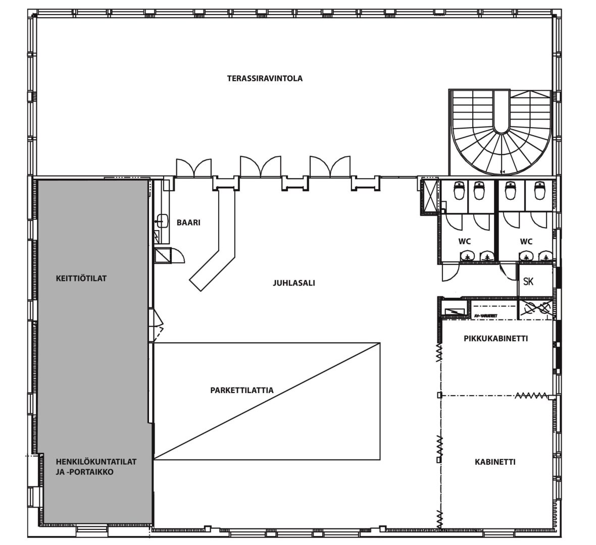
Kasinon yläkerran pohjapiirustus. Yläkertaan mahtuu ruokailemaan n. 120 hlöä.

Kasinon alakerran pohjapiirustus. Alakertaan mahtuu ruokailemaan n.100 hlöä.
Kasinon juhlapalvelut

Jätä yhteydenottopyyntö
Olemme sivuun yhteydessä mahdollisimman pian.


